當前位置: 国产精品麻豆免费视频振動篩廠家 > 產品中心 > 重型礦用振動篩 > 正文

適用物料:食品、飲料、醫藥、化工、塑料、磨料、陶瓷、造紙、納米
價格區間:100000-800000
處理能力:100-1000t/h
產品別名:麻豆视频国产精品,等厚振動篩
索要優惠報價
銷售熱線:
13782587121
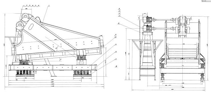
直線等厚振動篩機篩麵由不同傾角的多區段(一般為三段)組成,使篩分物料在各區段呈近似等厚分布,有利於物料在篩麵上的輸送、分層和透篩。
采用法蘭式激振器,由兩台電機外拖動作反方向同步運動,使入料端到出料端物料厚度近似相同,各段篩麵上物料量與流速比值穩定,料層均衡篩分效率顯著提高,比相同有效麵積振動篩處理可提高1-2倍,特別對於中細物料分級效果更為顯著。
直線等厚振動篩是由篩箱、法蘭式激振器、隔振係統、傳動係統等組成。篩麵由不同傾角的多區段(一般為三段)組成,使篩分物料在各區段呈近似等厚分布,有利於物料在篩麵上的輸送、分層和透篩。
| 型 號 | 篩麵規格(mm×mm) | 分級點 | 振幅mm | 振頻r/min | 處理量t/h | 篩分效率% | 功率KW | 篩麵傾角(o) | ||
| 頭部 | 中部 | 尾部 | ||||||||
| SDH-2060 | 2000×6000 | 5 | 10-15 | 850 | 150-200 | 85 | 2×15KW | 15 | 10 | 5 |
| SDH-2575 | 2500×7500 | 5-20 | 8-10 | 800 | 200-500 | 85 | 2×30KW | 15 | 10 | 5 |
| SDH-3090 | 3000×9000 | 5-20 | 8-10 | 800 | 300-800 | 85 | 2×45KW | 15 | 10 | 5 |
Copyright(C) 豫ICP備63881584號