翻鬥提升機
翻鬥提升機是通過鏈條帶動料鬥再封閉的殼體內輸送物料。能水平——垂直——水平組合輸送。可以單點或多點加裏奧,通過卸料裝置完成單點或多加點卸料,全封閉、無泄漏、無汙染。適用於輸送各種粉狀物料和顆粒狀物料,以輸送非粘性物質為Z佳。本設備Z大優點是組成形式靈活,由於運行阻力小所以驅動功耗低,對物料的破損率極低,可杜絕不良品的產生,適合各種需要柔和處理物料的場合。
真機圖片
	 
	 
 
	 
 
組成部分
Z型鬥式提升機主要由機殼、輸送鏈、料鬥、驅動輪、改向輪、張緊裝置、導向裝置、進料口、出料口等組成。
Z型鬥式提升機可根據提升物料和用戶要求選擇不同的物料和配置。
1、外殼:半封閉/防塵/不鏽鋼或碳鋼噴塑外殼。
2、鏟鬥材質:SS304不鏽鋼桶/碳鋼桶/食品ABS或PP桶。
3、料鬥容量:1.8L、2.4L、3.6L、6L、10L。
4、驅動裝置:防爆減速電機/普通減速電機。
5、鏈輪:合金鋼鏈輪/不鏽鋼鏈輪。
6、鏈條:合金鋼鏈條/不鏽鋼鏈條。
7、控製裝置:手動啟停/自動啟停、變頻控製。
8、提升輸送機給料方式:普通料鬥給料/電磁振動給料機。
9、輸送電壓:220V、380V(單相或三相)。
10、鬥式輸送機型式:Z型、C型、單個或多個進料口、單個或多個出料口。
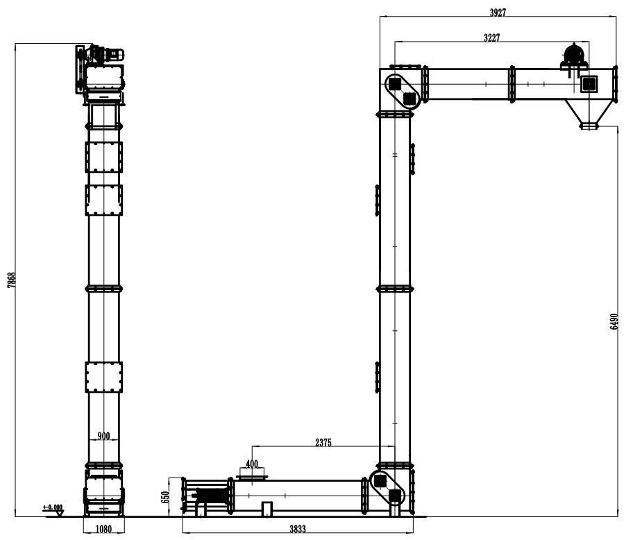
結構圖紙
 
容易出現的問題
	1、料鬥損壞。料鬥屬於易損件,但是也不是說就很容易損壞,在使用幾年後很有可能料鬥損壞幾個,這個是不可避免的,當然這也是跟物料和投料方式有關的,若是物料粗糙不堪,會導致料鬥磨損較快,若是投料方式比較沒有規律或者暴力,也會消耗料鬥。當然也是有辦法保養的,平常在使用的時候投料注意點,另外定時清理料鬥,下班後保證料鬥的衛生,發現料鬥都裂縫請及時焊接。 
	  2、掉鏈。Z型提升機掉鏈這個問題屬於後期維護不當造成的,掉鏈是由於鏈條拉長造成的,而隻是要鏈條就會拉長,但是国产精品麻豆免费视频的設備添加有漲緊器,漲緊器可以鬆緊鏈條,若是鏈條出現拉長的情況,需要將漲緊器上緊即可。購買国产精品麻豆免费视频的設備後,国产精品麻豆免费视频有使用說明書,並且在我的指導安裝時,都會將一些注意事項告知用戶。 
	  3、電機燒掉。這邊有幾個原因,首先国产精品麻豆免费视频是根據每個企業使用的物料和Z型提升機長度選型的,所以電機是沒問題的,之前有用戶購買過国产精品麻豆免费视频的機器後,覺得好用,於是將設備運輸到另外一個廠房,輸送比較比較大的物料,原本物料比重是0.6,後來輸送3.5的比重,並且長時間的工作,造成電機負載比較大,最終燒掉,平時也不維護保養。另外也有缺項燒掉電機的,這也是挺可惜的。 
	  4、齒輪打滑。齒輪打滑是出現在電機與主動軸那塊,這邊有一個離合器,是一個保護裝置,這個東西不能夠完全上緊,上緊就起不到作用了,需要將其上的不需要太緊,帶動鏈條即可,但是會出現用戶上緊真的特別不緊,會導致一添加物料出現打滑的情況,這個時候隻需要在上一點螺絲即可。